pm4 . MiNiMaBuilding

Surface

180m2+

Construction d’un immeuble
Pantin
210m2

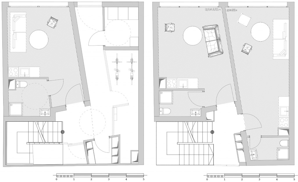
Commande d’un promoteur privé, le projet est situé sur une parcelle très petite, 75m2, en zone urbaine dense. La demande est de faire le maximum de logements possibles soit, après étude de faisabilité, 6 studios et un duplex aux derniers étages.
La forme du bâtiment et sa circulation en extérieur par des escaliers en métal sont donnés par les contraintes budgétaires et réglementaires. Les mitoyennetés de l’immeuble contraignent à une isolation par l’intérieur mais la façade est entièrement recouverte de membrane plastique FPO. Une boîte en bois vient se poser sur le toit, rapportant un peu de chaleur et de matérialité à cet édifice aux contours flous.

La membrane FPO est à l’origine utilisée pour l’étanchéité de toiture.

Les seules ouvertures possibles étant côté rue, cette façade est ouverte au maximum par de larges baies vitrées.

😉
🙃