pm4 . rEdExt

Surface

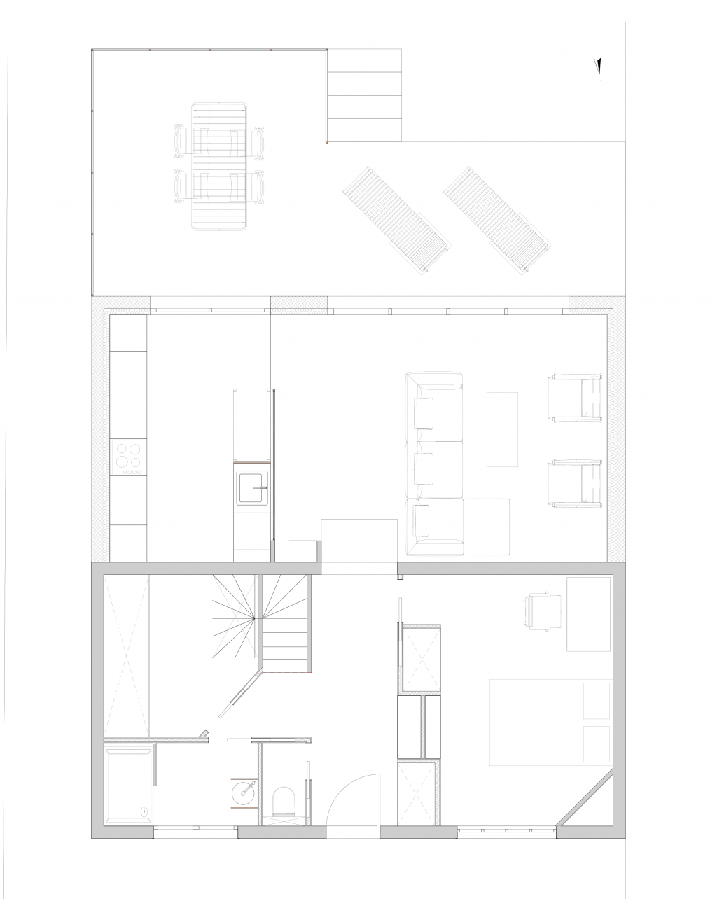
80-180m2

Extension d'une maison

Hello!

Hello!

😉
🙃