pm4 . refleXion

Surface

0-10m2

Rénovation d'une suite parentale
Voisin le Bretonneux

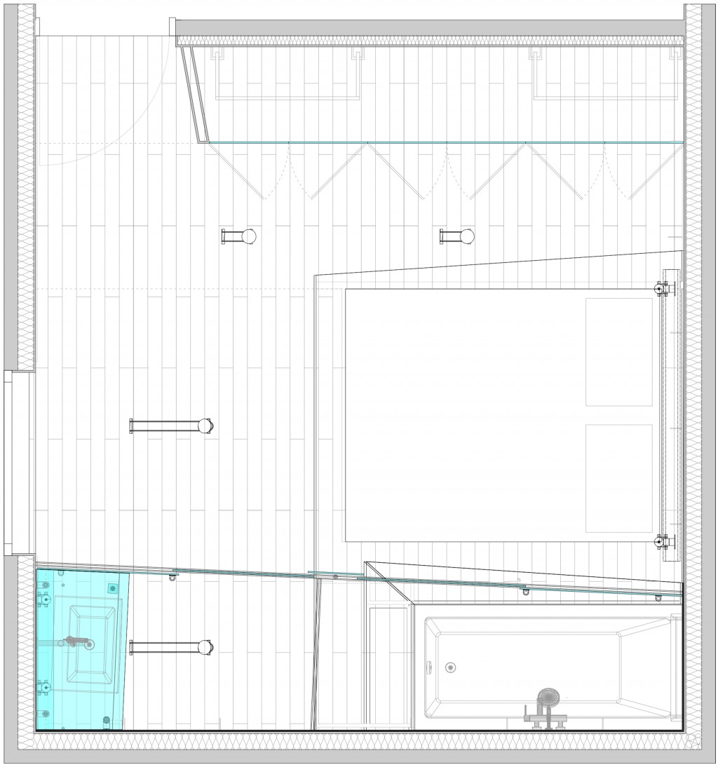
Les clients souhaitaient réunir dans un seul espace chambre et salle de bain parentale dans un pavillon de plein pied.
Le volume des combles est récupéré pour donner de nouvelles proportions à la pièce ainsi que des apports de lumière par le toit. La salle de bain tout en longueur se glisse au fond de la pièce avec une grande baignoire et un meuble lavabo. Le sol en cocotier se relève ensuite en un meuble regroupant à la fois la baignoire et le lit.
Une grande paroi en verre suspendue et coulissante sépare la baignoire du lit et il devient possible d'aller d'une enjambée de l'un à l'autre. Un grand dressing recouvert de miroir vient se loger à l'opposé de la salle de bain et l'espace se reflète dans les multiples parois de verre.

Le meuble lavabo est dessiné sur mesure en PMMA et des vis d’assemblage ont été spécialement usinées pour répondre au mieux au dessin.

Les clients hésitant entre une paroi transparente ou translucide nous avons donc dessiné un motif en damier sur-mesure.

😉
🙃